Pre-test

Before you begin this course, test your skills by taking the following assessment to see where you stand. Keep track of your incorrect answers to know which skills you should study. You'll have a chance to take this same practice test again at the end of the course to see how you've improved.

All questions must be answered to submit your assessment.

Pre-assessment

58 questions

Refer to exhibit.


In the Page Setup Manager, a CAD designer notices that the Set Current option is disabled. What could be the issue?

(Select one)
Select an answer

A CAD designer opens a drawing. In a previous session, a field was created that reflected the length of a polyline. Now the field appears as a row of hash marks, instead of a length. What can the designer deduce from this scenario?

(Select one)
Select an answer

Refer to exhibit.


When moving a palette to the left side of the screen, the palette changes into a box as shown in the exhibit, indicating it’s going to be docked. When this occurs, what should be done to prevent the palette from docking?

(Select one)
Select an answer

Refer to exhibit.


A CAD designer notices that an arc (represented in red in the exhibit) is missing from a drawing. Which two Arc methods could be used to draw the missing arc? (Select two.)

Select up to 2
Select an answer

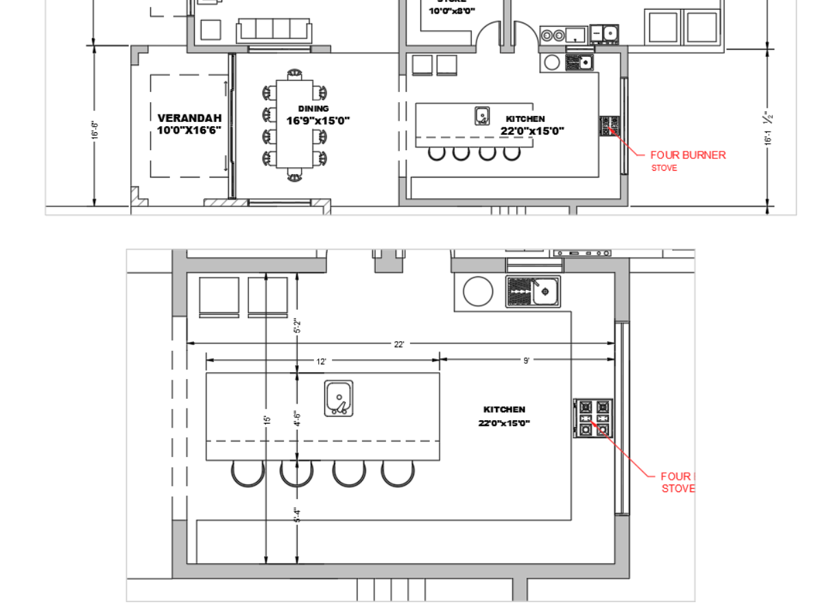
Refer to exhibit.


In the floor plan shown, the A-WALL and A-DOOR layers both have the color property set to RED but the door linework appears faded.

Which layer property should be modified so that the objects on both layers appear the same?

(Select one)
Select an answer

A CAD designer has attached a PDF as an underlay and wants the PDF to plot without the frame around it. What workflow should be used?

(Select one)
Select an answer

Refer to exhibit.


When using the COUNT command, a CAD designer notices the count of (4) Chair blocks appears to match what is shown on the plan. However, one of the chairs is shown in red which indicates there is an issue. What could the count issue be?

(Select one)
Select an answer

A CAD designer is required by the client to use an SHX font for text, but needs to add italic text to a drawing. The SHX font does not have an italic option. What are the designer’s options?

(Select one)
Select an answer

Refer to exhibit.



The red multileader is visible in both viewports, each with a different annotative scale. The multileader’s text is being cut off by the bottom viewport and needs to be repositioned.

How should a CAD designer adjust the multileader in the lower viewport without affecting it's placement in the upper viewport?

(Select one)
Select an answer

Refer to exhibit.


A CAD designer copies a tree elevation from another drawing to the clipboard. While pasting it on a new elevation, the insertion point for the tree is at (A) instead of at the base of the tree trunk (B) as preferred. What should the designer do to ensure that the objects paste as preferred?

(Select one)
Select an answer

A drawing contains a number of blocks that are no longer used. A CAD designer would like to ensure that these blocks are removed. After purging, more blocks appear in the list of Named Items Not Used. What option should the designer have used in the PURGE dialog to purge these additional blocks at the same time?

(Select one)
Select an answer

Refer to exhibit.


When hovering the cursor over annotative text, what does the badge beside the cursor indicate about the object?

(Select one)
Select an answer

Refer to exhibit.


[Note: AutoCAD for Mac uses the Project Manager for sheet lists and sheet sets. The Mac terminology is included in parenthesis below. See the AutoCAD for Mac Help documentation for further details.]

A CAD designer has used Sheet Set Manager (Project Manager) to create the sheet index shown in the exhibit and prefers that the sheets are shown their respective discipline subsets (groups). What setting should be used when creating the sheet list (layout)?

(Select one)
Select an answer

Refer to exhibit.



A CAD designer is working on a building plan and boundary. The custom UCS origin is shown by the dot.To vertically align the Y-axis of custom UCS in a positive direction in relation to North, what must the designer do?

(Select one)
Select an answer

After creating a transmittal using eTransmit and sending it to a client, the client reports that they are unable to open any of the drawings. What step did the CAD designer miss while creating the transmittal?

(Select one)
Select an answer

A few weeks after sending a client a shared file link, a CAD designer receives a complaint that the link is not working. What is the reason that the shared link no longer works?

(Select one)
Select an answer

Refer to exhibit.


A CAD drawing shows the plan view of two buildings connected by a corridor. Building 2 (indicated with a 2 in the exhibit) is angled at 18 degrees from horizontal.

What workflow should the CAD designer use to make it easier to draw the interior walls for building 2 orthogonal to its orientation, and make it possible to easily switch between the two building's angles?

(Select one)
Select an answer

Refer to exhibit.


A CAD designer has received feedback that the company no longer wants to use the hand-lettered type font in tables. What should the designer do to ensure that existing and future tables comply with this request?

(Select one)
Select an answer

Refer to exhibit.


A CAD designer needs to add a table to a drawing and would like to set all the column and row settings before inserting the table. The Insert Table dialog, however, is only letting the designer specify the number of columns or column width, not both. Similarly with rows. What table insertion option should be changed to permit presetting all the desired column and row settings in the Insert Table dialog?

(Select one)
Select an answer

Refer to exhibit.


A CAD designer has selected the desk block in cubicle 6063 and notices that the grip representing the block’s insertion point is oddly located. They would prefer the base point to be in the corner. What does this tell the designer about the block?

(Select one)
Select an answer

While reviewing a drawing, a CAD designer notices that the objects in a paper space viewport are a different color than they are in model space. What would cause this to occur?

(Select one)
Select an answer

While comparing two drawings, a CAD designer would like to import selected objects from the compared drawing into the current drawing. What is the most efficient workflow that could be used?

(Select one)
Select an answer

A CAD designer wants the Properties palette to remain open (visible) but also wants to use a much of the screen as possible for the drawing canvas. What palette settings can be changed to achieve this?

(Select one)
Select an answer

What two MVIEW options will create a non-rectangular viewport? (Select two.)

Select up to 2
Select an answer

Refer to exhibit.


A CAD designer has imported client markups as a trace in the current drawing. During the import, Markup Assist reported that markups were detected, but when the designer turns on TRACEVIEW, the markups don’t appear to be identified. What does the designer need to do?

(Select one)
Select an answer

After importing a PDF, a CAD designer notices that the dashed lines in the PDF were converted into many individual line segments. What setting should the designer select when importing PDFs to avoid this issue in the future?

(Select one)
Select an answer

Refer to exhibit.


While using the WBLOCK command to export a block to a drawing file, a CAD Designer notices that the Base point option is disabled. What would cause this?

(Select one)
Select an answer

Refer to exhibit.


The holes for the original gasket design were created as a rectangular array. In the revised gasket, the upper-right hole needs to be positioned where the yellow centerlines are shown. What should the CAD designer do to update the array?

(Select one)
Select an answer

Refer to exhibit.


When hovering over one of a polyline's grips, the dimensions displayed in the exhibit indicate what setting is turned on?

(Select one)
Select an answer

Refer to exhibit.


While using the MEASUREGEOM command, a CAD designer notices that the orange horizontal dimension does not show a distance. What does this indicate about the geometry?

(Select one)
Select an answer

A CAD designer left a drawing open overnight and the IT department performed a patch, causing the system to reboot. What occurs when AutoCAD restarts?

(Select one)
Select an answer

What should be done to prevent a viewport’s scale from being changed accidentally?

Select up to 1
Select an answer

To ensure that a referenced drawing is always visible when its host drawing is referenced into another drawing, what external reference setting should a CAD designer use?

(Select one)
Select an answer

A company has a particular block that designers are encouraged to use frequently to bring in standard settings. What workflow should a CAD designer use to make this block easier to insert in the future?

(Select one)
Select an answer

To eliminate the need to add annotation scales to annotative objects when a viewport’s scale changes, what setting should a CAD designer enable before changing the viewport scale?

(Select one)
Select an answer

Refer to exhibit.


A CAD designer needs to add more spaces to a parking lot and starts the OFFSET command but doesn’t know the spacing that was used for the adjacent spaces. At this point, what workflow should the designer use?

(Select one)
Select an answer

Refer to exhibit.


In the exhibit at the left, all the computers are the same color (magenta). When a CAD designer selects them, however, the Properties palette shows the color property as "VARIES". The blocks are all on the same CPU layer and that layer's color is set to Magenta. Why would the Properties palette report "VARIES" for the color property?

(Select one)
Select an answer

Refer to exhibit.


A CAD designer needs to transfer project files and folders from the company network (left path in exhibit) to a laptop (right path in exhibit). One of the xrefs is missing from the main drawing but all the files transferred successfully. How should the references' paths have been set up to accommodate this scenario?

(Select one)
Select an answer

Refer to exhibit.


A CAD designer needs to make updates to an existing data-linked table, however, the Contents field in the Properties palette is disabled. How can the cell contents be changed in the table?

(Select one)
Select an answer

The BOUNDARY command is taking a long time to create a boundary in a complex drawing. What should a CAD designer do to improve the efficiency of this command?

(Select one)
Select an answer

Refer to exhibit.


A CAD designer is drawing the geometric shape shown in the exhibit. The point shown by the dot is the origin (X=0, Y=0) and is the start point of the LINE command. Assume that the World coordinate system is current.

Using relative coordinate/distance entry, what should be typed to draw the two line segments show in the exhibit?

Select up to 2
Select an answer

The current drawing is missing a number of predefined annotation scales. What should be done to resolve this?

(Select one)
Select an answer

After combining a collection of lines and arcs into a polyline with the PEDIT command, a CAD designer notices that its dashed linetype creates some undesired gaps at a number of the vertices. What can the designer do to remedy this?

(Select one)
Select an answer

When adding sheets to a PUBLISH sheet list, a CAD designer notices that the imported list includes Model and Layout tabs. What can they do when adding sheets to only add Layout tabs in the future?

(Select one)
Select an answer

Refer to exhibit.


A CAD designer notices that the upper drawing title is in two lines, even though the grips indicate that the text width is the same as the lower title. What should the designer do to return the upper title to a single line?

(Select one)
Select an answer

Refer to exhibit.


A CAD designer needs to create a layer filter that includes architectural layers (with an A- prefix) that contain objects. The filter should also be defined to accommodate any architectural layers brought in in the future from attached or bound references. After defining the initial filter shown in the exhibit, the preview is showing some unwanted layers. Which of the following filter definitions will provide the desired results?

(Select one)
Select an answer

A CAD designer restores a file from an online backup of a past project but is unable to open it. What should be done?

(Select one)
Select an answer

While working in a paper space viewport, a CAD designer wants to create a new layer that should not appear in any other viewport. What method should be used?

(Select one)
Select an answer

Refer to exhibit.


[Note: AutoCAD for Mac uses the Project Manager for sheet lists and sheet sets. The Mac terminology is included in parenthesis below. See the AutoCAD for Mac Help documentation for further details.]

A CAD designer wants to publish a sheet set (project), but Publish is disabled. What step is missing in the workflow?

(Select one)
Select an answer

A CAD designer needs to combine the content within an attached xref into the current drawing. The xref's layers should remain distinct from those in the current drawing. What xref method will accomplish this?

(Select one)
Select an answer

A CAD designer has applied lineweights to the layers but doesn’t have a quick way to toggle the lineweight display on or off. What change should be made to the interface to make it easier to toggle lineweight visibility?

(Select one)
Select an answer

The Quick Access toolbar (Tool bar) can be customized by using what method? [Note: Mac terminology appears in parenthesis.]

(Select one)
Select an answer

Refer to exhibit.


While grip editing a line with Dynamic Input enabled, three boxes are displayed as shown in the exhibit. What workflow should be used to enter a new value for box #1?

(Select one)
Select an answer

A CAD designer realizes that every time annotation scales are changed, that scale is applied to all the annotative objects in the drawing. What setting should be changed to prevent this?

(Select one)
Select an answer

Refer to exhibit.


The selected dimension text in the exhibit has been moved and needs to be restored to its original location. Which multifunctional grip function should be used?

(Select one)
Select an answer

What workflow should a CAD designer use to make it possible to edit grips simultaneously?

(Select one)
Select an answer

After restoring the World Coordinate System, a CAD designer notices that a previously created User Coordinate System (UCS) is no longer available. What step did the designer forget to take?

(Select one)
Select an answer

Refer to exhibit.


What AutoCAD feature is indicated by the green dotted reference lines shown in the exhibit?

(Select one)
Select an answer

58/58 questions left unanswered