Directory/EDGE^R
EDGE^R

EDGE^R

Daphne, AL
Revit
Integrated Product(s)
  • Revit
Category
  • BIM
Region
  • Americas
  • EMEA
  • APAC
  • ANZ
Support
EDGE Software

EDGE Software is a leader in intelligent workflow solutions for the precast concrete industry, built on decades of real-world engineering experience. EDGE^R was created to transform the way producers and engineers design, detail and deliver projects.

EDGE Software has been delivering cutting edge BIM software for a decade. Building on top of Autodesk's powerful Revit platform via the Revit API, our flagship product EDGE^R is the premier BIM solution for precast.

EDGE^R offers a robust library of tools for automating functionality for the entire premanufacturing/precast lifecycle.

Designers, drafters, BIM Managers, engineers, and plant managers can all help save their companies time and money while reducing risk and errors by implementing EDGE^R into their workflow.

Some of EDGE^R's benefits:

  • Over 3000 families of customizable precast structural and connection content to jumpstart any project
  • Data-rich modeling tools to track piece weights, volumes, and quantities effortlessly
  • Expanded BIM piece and project data
  • Streamlined creation of model-linked shop tickets
  • Automated schedules, BOM, and title block population
  • Automated Insulation Placement and marking, model and ticket level insulation drawing tools, and CNC exports for insulation panels
  • Automated piece marking & tracking tools
  • Reinforcement marking automation
  • ERP Exports for systems such as Concrete Vision and IFS Cloud.
  • CAM exports for shop floor automation in several popular formats
  • Production Scheduling & Erection Sequence tools

"EDGE has been a game-changer for us at NAPCO Precast. We’ve been rolling it out step by step, and the results speak for themselves. Being able to show owners their projects in a 3D model has transformed the sales process—it builds trust, makes decision-making faster, and gives clients confidence in what they’re getting. It’s quickly becoming an essential part of how we do business."

Jose Barajas, P.E.
Structural Engineer at NAPCO

Use Cases

Precast modeling made easy

With EDGE^R's library of over 3,000 custom Revit families and powerful modeling tools, building your precast model has never been easier. Features such as multi void cutting, addon hosting, and mark verification ensure that your models are data rich and accurate from the start. Auto Warping and our suite of visibility tools and toggles ensure that the user can visualize their model from production to erection with ease.

Automate your drafting

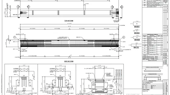
EDGE provides a robust suite of ticketing tools to suit your drafting needs. The EDGE ticket template ecosystem gives you the power to save standards for all of your producers so you can be sure you get it right every time. Automatic ticket generation and clone ticket functionality makes shop tickets a breeze. Simply pick a template or a ticket to copy from and see live model-linked dimensions and callouts come in automatically, saving your drafting department hours of tedious ticketing time.

Robust CAM Exports

EDGE^R provides many ways to get the data you need from the Revit model out and into the real world. EDGE^CAM and our customizable CAD export solutions allow for enhanced production automation integrations. Bring your EDGE models into the real world with these exports, supporting some of the most common machine automation formats for rebar bending, concrete distribution and laser projection.

Automated Piece and Reinforcement Marking

EDGE^R provides many tools for marking your pieces and hardware. The Mark Verification Initial and Existing tools provide both piece marking and mark validation for your precast products. The Rebar Mark Updater provides automated rebar naming according to your needs, simply assign a naming scheme per producer and let the updater handle the rest.

Media

Ready to connect with EDGE^R?

Powered by
Get started