We are pleased to announce that we have just released the Revit 2018.2 update. This update is available to subscribers and current maintenance plan customers via your accounts portal or the in-product Autodesk Desktop App. Along with a number of bug fixes and stability improvements, this release also includes new functionality.
“We keep telling you, it is the little things that count.” – damo3, user on Revit Ideas
We often hear that it’s the small enhancements that are most valuable. After a year and a half of running Revit Ideas, we have received a lot of ideas to act on (lots and lots of ideas). So in honor of that with the Revit 2018.2 update we have tackled a number of your suggestions for making your life better using Revit.
To start things off – the Revit 2018.2 update has a few goodies that provide improvements for all disciplines
These ideas had over 450 votes on the Ideas Page. We’ve linked each feature below to the related post on the Revit Ideas page.
- Improved Section box controls We’ve improved section box grips (or controls) so that they are easier to select. This should make manipulating section box edge locations much easier and make it so that you don’t accidentally select something you did not want to.
- Improved section box controls
2. Project Browser Expand and Collapse We’ve added new right click menu options that allow you to expand or collapse everything in the project browser at once or just for the selected item in the tree.

Project browser expand and collapse
3. Improved Fill Pattern Dialog We’ve replaced the old fill pattern dialog with an updated dialog that has the solid fill pattern at the top of the dialog, the ability to search for patterns, allows for multi-selection and deletion of patterns, and is resizable (and remembers it’s size). Finally, when you’re editing a pattern, the dialog allows you to scale the pattern without having to reload it (plus it automatically previews the scale change). These changes reflect a number of different requests and should make working with fill patterns easier.

Fill pattern dialog enhancements
4. Remember Last Location for Loading Families This enhancement remembers the last location from which you loaded a family the next time you go to load another family. This should make it easier to navigate to the location where your families are stored when working with them in a project.

Revit 2018.2 remembers location of last family loaded
5. Remember Column width spacing in Type properties dialog In what is really more of a fix than enhancement, we are bringing back the functionality that remembered the column widths of the family types dialog when editing families.
For duct and pipe detailing, we have a few gems as well
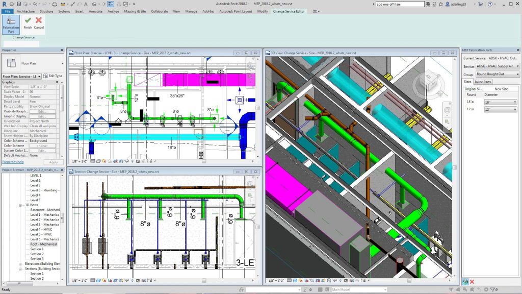
- Change service and change size You can now more easily iterate detailed pipe and duct layouts made up of MEP Fabrication Pipework and MEP Fabrication Ductwork. Revit provides the ability to change, for example, welded piping layouts to grooved layouts. The functionality also allows you to modify a selection of elements from one size to another.

Fabrication change service
- Visibility / Graphics Overrides on MEP Fabrication Elements MEP Fabrication elements can now be color coded by applying a solid surface pattern in view settings.

Fabrication solid fill
For mechanical design, here are some improvements to streamline deployment and production
- P&ID Modeler released as an add-in shortly after Revit 2018.1 was released is now incorporated into 2018.2. This streamlines the process of creating a model based on P&IDs. Coming to Autodesk University in Las Vegas November 14-16? Check out this related class.

- Direction Arrows on Duct and Pipe Connectors When using connect-into and analytical connections, the connectors on MEP elements now indicate their flow direction, making it easier to identify the desired connection to connect to.
More content for structural design and detailing
- New Precast content including beams, columns, slabs, and isolated foundations helps you model Precast concrete structures faster and more precisely. This content is localized in English and German. The German version of the families is based on Fachvereinigung Deutscher Betonfertigteilbau specifications.

New precast content
2. Rebar Content Update for France and Germany New French and German rebar shapes have been added to the Library, to enhance rebar modelling and better support local standards.

Updated rebar content
Learn more about new content in the Revit 2018.2 update in this BIM and Beam Blog post.
We hope you like our Revit 2018.2 update release and that the smaller things we’ve added make you more productive. If you’d like to see more about our future roadmap, check out www.autodesk.com/revitroadmap.
YouTube playlist of what’s new in the Revit 2018.2 update.
Extend the power of your BIM workflows with the Autodesk Architecture, Engineering & Construction Collection. The collection includes software and services that integrate seamlessly with Revit so you get all the benefits of BIM, from project concept to completion.